Casa indipendente in vendita Via Val Brenta , Pinzolo
Sant'Antonio di MavignolaTrattativa riservata
230mq
4locali

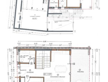
Nel contesto alpino di Sant'Antonio di Mavignola, frazione di Pinzolo, a pochi minuti da Madonna di Campiglio, proponiamo in vendita terreno edificabile con progetto approvato per la realizzazione di uno chalet indipendente.
Il progetto prevede la costruzione di uno chalet il legno indipendente e così composto: luminoso soggiorno con angolo cottura, due bagni, due stanze, una taverna ed una spaziosa veranda con vista. Completo di terreno privato, posti auto esterni, cantina e garage.
Maggiori informazioni in ufficio....
Aggiornato il 12 Marzo 2026Scrivi qui le tue note private sull'annuncio
Caratteristiche immobile
- Aria Condizionata:assente
- Stato al Rogito:libero
- Bagni:2
- Locali:4
- Metri quadri:230
- Condizioni:abitabile
- Box:2
- Posti Auto:2
- Giardino:privato
- Terrazzo:sì
Esplora la zona della casa indipendente
Aiutaci a migliorare il servizio: se l'annuncio non è veritiero o l'immobile non è più disponibile, .
Contatta l'inserzionistaCodice annuncio: 53523012 Rif: TN545
Riferimento Imm: TN545
Codice: 53523012